cy彩运官方网站
欢迎来到新乡市立友机械有限公司官网
脱水、脱介、脱泥
专业专注脱水筛机生产设计
网站首页
脱水筛机
厂家简介
脱水筛选型参数
脱水筛资讯
使用知识
结构图纸
联系厂家
当前位置:
脱水筛机
>
脱水筛图纸
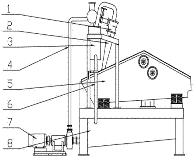
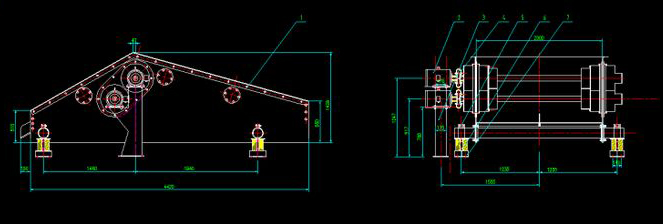
脱水筛图纸
GPS1536高频脱水筛图纸
tss1840振动脱水筛图纸
脱水筛尾矿干排装置制图纸
我厂给洛阳某个厂家设计尾矿脱水筛使用环节图
坐式吊式脱水筛图纸分享
振动脱水筛结构图纸
双层激振器式脱水筛图纸
共 7 条
1
香港六玄开奖网-六玄网132432-六玄神马开奖44579-六玄公式6588777-六玄神马免费中特料-澳彩六玄网论坛6258cmcc
澳门灵蛇网4949-香港灵蛇网论坛资料大全最新-灵蛇网4846cc最新版本更新内容-灵蛇网4668cc-灵蛇澳门2025年今晚看
祥顺彩票|主页
天游8线路检测中心|欢迎您
灵蛇澳门2025年今晚看-灵蛇网4846cc-灵蛇网免费资料大全--灵蛇网4846cc最新版本更新内容-澳门灵蛇网4949
welcome如意彩|首页